専門医の方へ 単位更新に関する情報
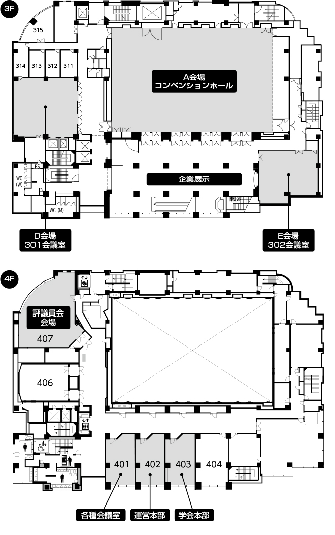
会場案内
岡山コンベンションセンター
〒700-0024
岡山県岡山市北区
駅元町14番1号
TEL 086-214-1000
FAX 086-214-3600
日本糖尿病学会中国四国地方会第55回総会
会場案内
会場図