home
専門医の方へ 単位更新に関する情報
専門医の方へ 単位更新に関する情報
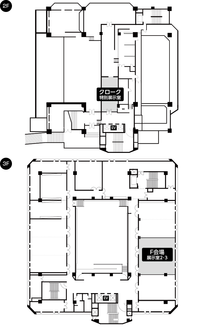
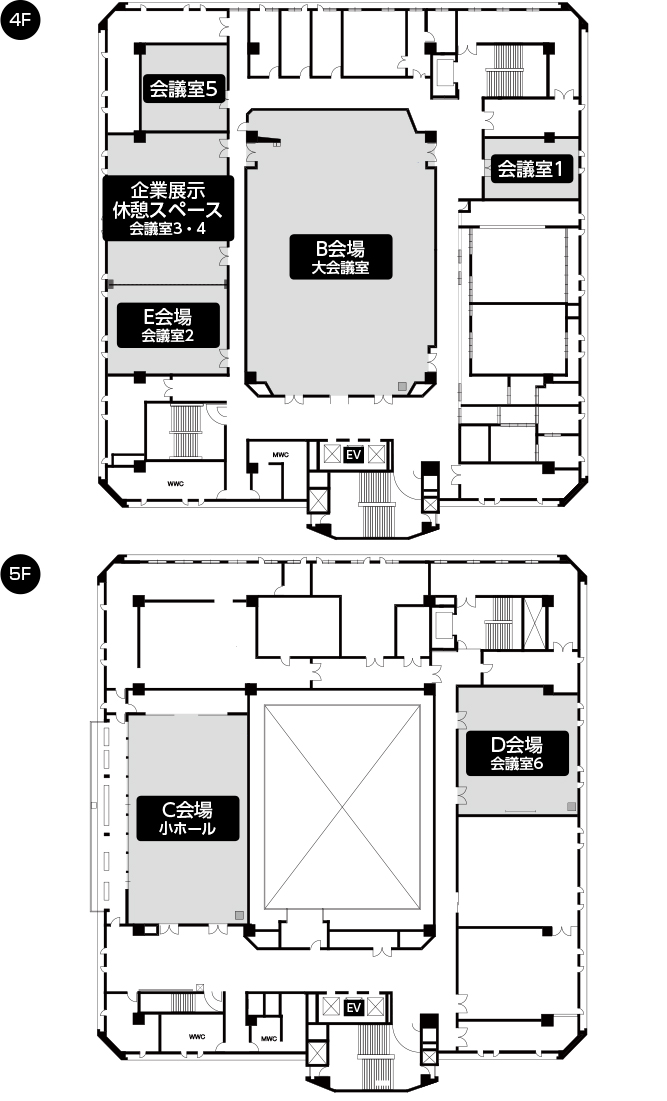
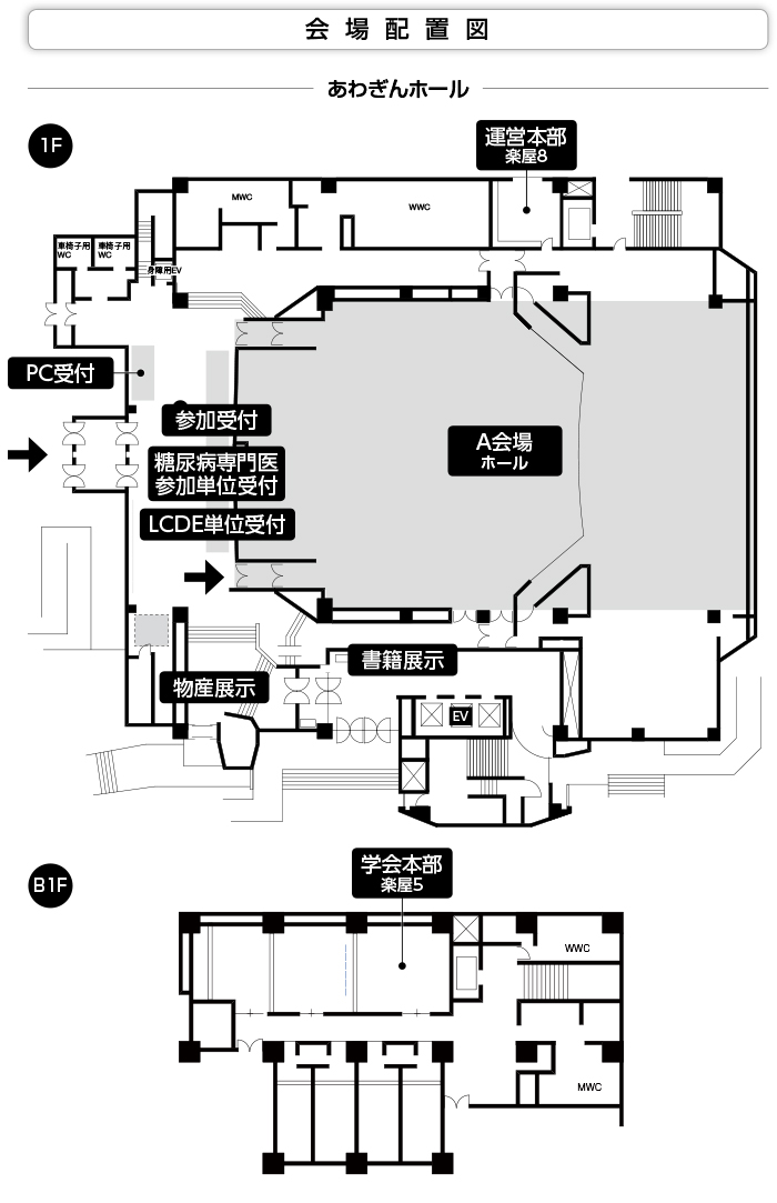
会場案内
徳島県郷土文化会館
あわぎんホール

〒770-0835
徳島県徳島市藍場町
2丁目14番地
日本糖尿病学会中国四国地方会第57回総会
会場案内
会場図