会場案内
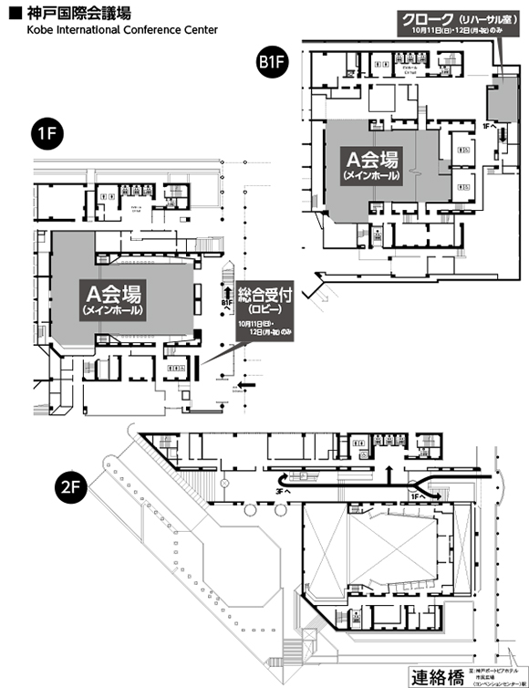
会場アクセス
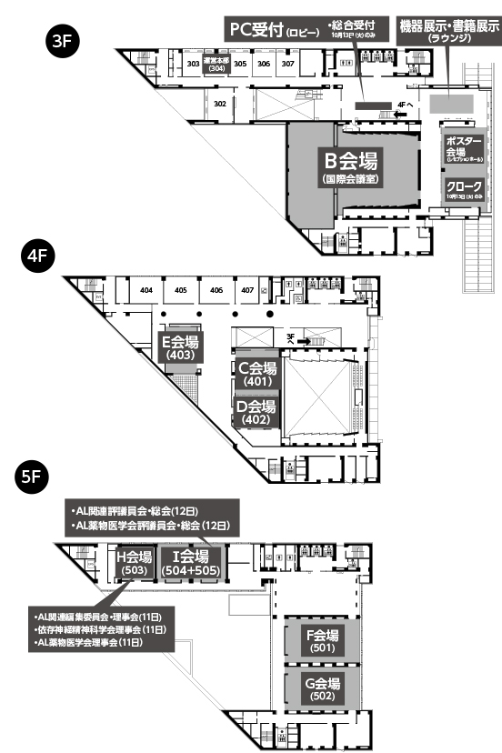
会場案内図